Instalaciones Fijas del servicio público de Limpieza Viaria del distrito de Chamberí

CLIENTE:    Cespa

PROYECTO DE EJECUCIÓN



FICHAS

CES_FICHA01

CES_FICHA02

CES_FICHA03

DESCRIPCIÓN DEL PROYECTO

En un entorno residencial y en la cercanía de una dotación escolar, la respuesta proyectual presta especial atención al impacto estético del edificio y a las cualidades medioambientales.

El edificio se justifica como elemento de entidad proyectual, paisajística, medioambiental y social. Las instalaciones fijas para la limpieza viaria destinadas al Ayuntamiento de Madrid, comprenden unas funciones cuya importancia trasciende la escala próxima. En este sentido el edificio simboliza un nuevo modo de entender y ponderar el valor de su servicio a escala de distrito, concediendo a su arquitectura una entidad de icono urbano. Por otro lado el edificio realza valores estéticos y medioambientales que revalorizan una zona urbana consolidada de uso residencial y sirve de importante reclamo desde la autopista como intervención ejemplar desde el punto de vista bioclimático.

Se apuesta por la creación de una gran envolvente, piel vegetal del edificio, que lo cubre y se prolonga cubriendo a su vez la zona posiblemente menos amable de la instalación que corresponde al aparcamiento de vehículos grandes. De esta manera, mediante esta importante inversión, esta superficie queda cubierta por un manto vegetal que surge del propio terreno separándose de él a través de la gran pérgola por donde crecen las enredaderas y las trepadoras, lográndose una importante reducción del impacto medio-ambiental sobre el entorno, desde el punto de vista visual principalmente pero también en los niveles acústicos.

El volumen principal del edificio se sitúa alejado del parque colindante. La envolvente de las fachadas del  edificio se funde visualmente con un plano verde que cubre la planta de sótano y que se inclina suavemente hacia el extremo sur de la parcela. Con este gesto se revalorizan los valores estéticos y medio ambientales del entorno. El edificio se funde con la parcela ajardinada. Las fachadas se cubren con vegetación ofreciendo a la vista un jardín vertical. La actuación arquitectónica es a la vez paisajística y el volumen edificado es también un elemento vegetal.

La zona libre de la parcela alrededor del edificio es un plano verde alabeado de plantas tapizantes y trepadoras que ascienden hacia él siguiendo la topografía original realizando la transición hacia la plataforma del aparcamiento. En él se localizan lugares de descanso para el personal y caminos peatonales zigzagueantes.

Este plano verde se continúa en la envolvente del edificio, como se ha dicho, formada por una estructura metálica y una malla que facilitan el crecimiento de trepadoras en toda la fachada. La visión de esta piel desde el interior del edificio será la de una malla verde transparente que aportará frescor al interior protegiéndolo de la radiación solar directa.

Se pretende la creación de un paisaje, un manto natural que cubre las instalaciones y protege el edificio del sol. Una extensión vegetal que según las especies de vegetación puede modificar sus tonos de color a lo largo del año, convirtiéndose en un fondo visualmente atractivo para el entorno urbano existente y un escape visual para el personal

SITUACIÓN

situ

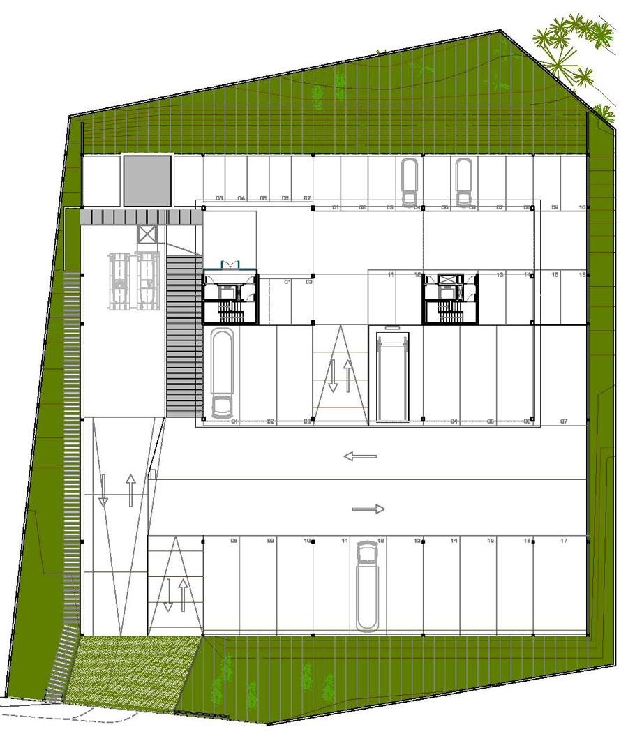
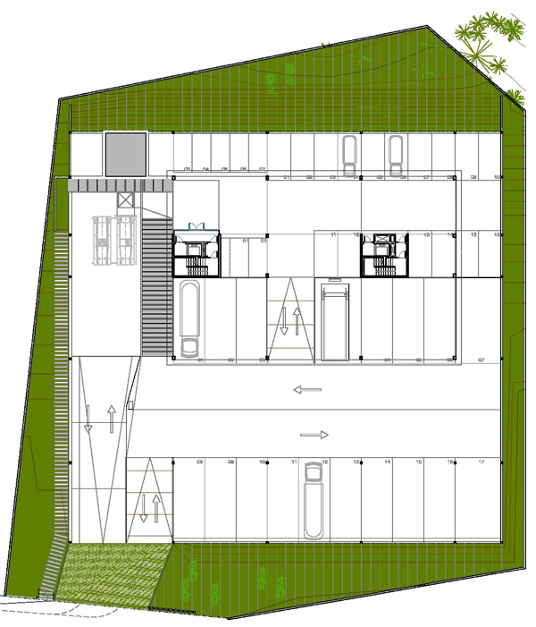
PLANTAS

psot


p00


p02

ALZADOS

alzado lateral

SECCIONES

sec01

sec02

sec03

IMÁGENES

img01


img02

img03

img04

img05