CULTURE YARD IN HELSINGOR

PROMOTOR:    AYTO. HELSINGOR



FICHAS

HEL_FICHA01

HEL_FICHA02

DESCRIPCIÓN DEL PROYECTO

'La ventana de ciento cincuenta metros'

Primero, una vista del castillo de Kronborg y justo detrás Oresund

Una ventana se abre para capturar la vista, una ventana nueva y singular extendida todo a lo largo del lugar.

Un nuevo volumen, claro y nítido, intersecta los viejos edificios navales.

Su superficie brilla y cambia como el mar de delante.

El nuevo volumen se alza sobre el astillero, dejando la planta baja libre para la vida al aire libre.

Los viejos edificios están parcialmente contenidos dentro del volumen. La fábrica de sus muros oculta la memoria del astillero dentro del nuevo edificio.

La fachada domina la VAERFTSPLANADEN y es claramente reconocible desde el mar y desde la ciudad. Su piel vidriada deja ver a través de ella la luz y las actividades del interior por la noche. Bajo ella, un agradable paseo bajo el edificio conduce a los visitantes hacia la entrada principal desde la ciudad y sirve como protección del vestíbulo al aire libre dotando al edificio de su carácter completamente público. Además, en el edificio número 13, la cafetería y el pequeño hall polivalente se abren hacia la VAERFTSPLADEN posibilitando los eventos al aire libre. Detrás encontramos el museo marítimo y el camino hacia el castillo de Kromborg.

El gran espacio abrigado entre los edificios 10 y 12 servirá como emplazamiento para exposiciones del museo naval adyacente, aparcamiento de bicis y punto de encuentro para los visitantes de la ciudad. Este espacio funcionará en el futuro como entrada natural a la 2ª planta del centro.

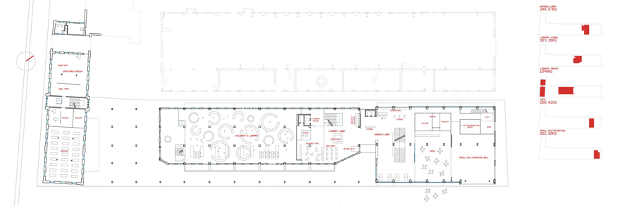
El espacio para la biblioteca infantil está en la planta baja, accesible directamente desde el vestíbulo, para minimizar las molestias a otras actividades.

En la primera y segunda planta las zonas de lectura de las bibliotecas de adultos se encuentran dentro de los viejos muros del edificio. Están iluminadas por pozos de luz en el techo. Un espacio en doble altura se dispone a lo largo de la fachada principal y sirve como área relajante de lectura y circulación, un espacio privilegiado con unas vistas perfectas.

Entre el edificio 10 y 12 un gran espacio conforma la plaza de información. La presencia de las viejas fachadas da una sensación de espacio público al aire libre. Hay un lugar en este espacio para los adolescentes donde pueden guardar su intimidad y aún así mantenerse en contacto con con el resto del edificio.

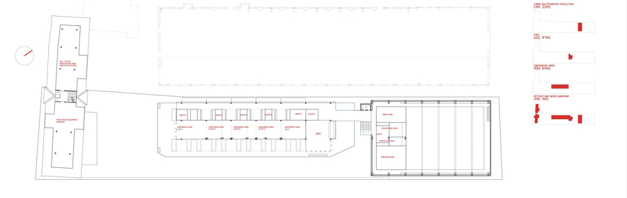
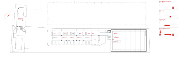
En la tercera planta, las salas de conferencias tienen acceso a una terraza en la cubierta con unas vistas incomparables.

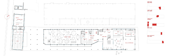
El gran hall polivalente está situado en la primera y segunda planta del edificio 13. Los muros de la caja negra pueden abrirse y mostrar el paisaje de atrás en algunos eventos. El espacio de encima ha sido dimensionado para el máximo potencial de hall. Desde el vestíbulo común accedemos al foyer en el primer piso, visualmente conectado a la biblioteca y abierto al VAERFTSPLADEN y al mar.

PANELES

panel01panel02panel03
panel04panel05panel06

SITUACION

situ

PLANTAS

pSot

PLANTA -1

p00

PLANTA 0

p01
PLANTA 1

p02
PLANTA 2

p03
PLANTA 3

ALZADOS

alzado

ALZADO PRINCIPAL

SECCIONES

secciones

SECCIONES TRANSVERSALES

DETALLES

detalles

ESQUEMAS

seccion urbana

sección urbana


circulaciones

circulaciones interiores



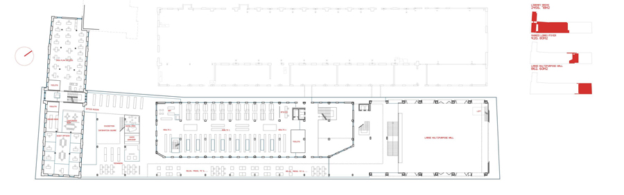
usos y aforos

polivalencia de usos y tamaños del salón de actos

IMAGENES

img01


img02


maqueta