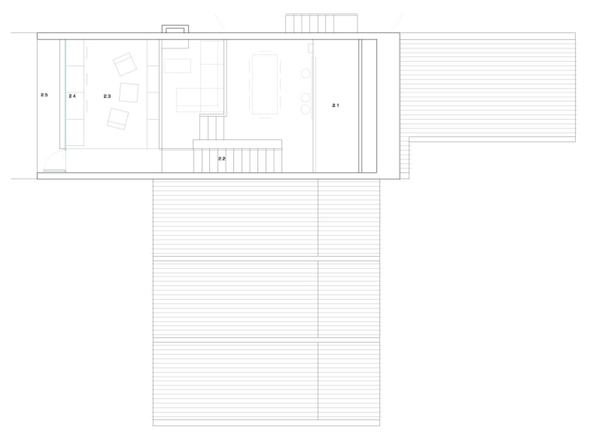
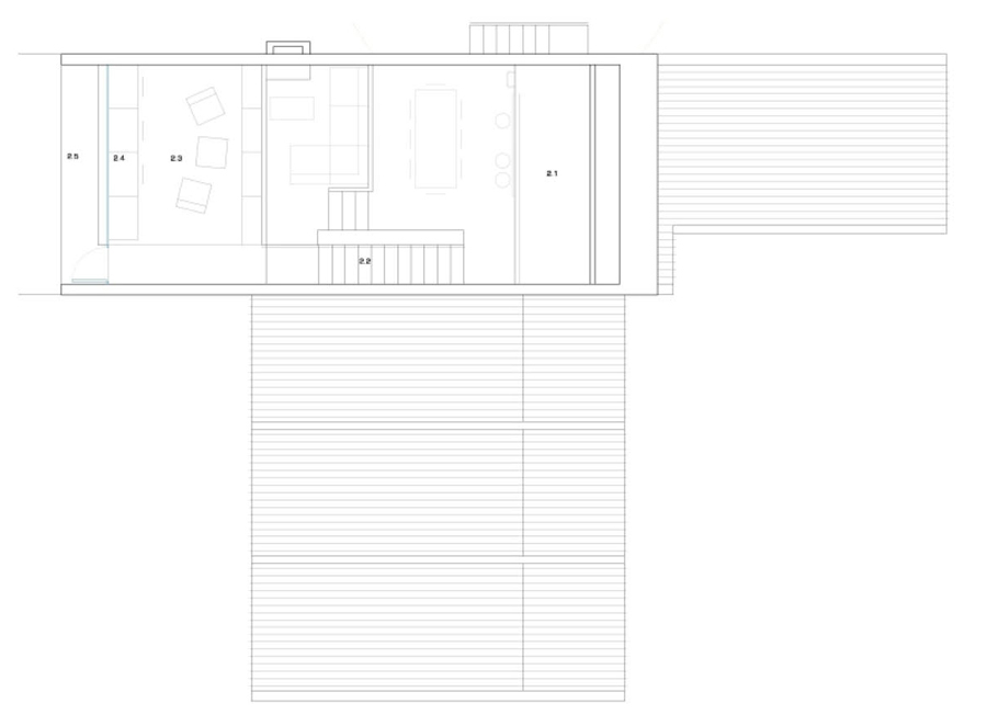
Se considera fundamental su relación con el gran encinar que se abre ante su fachada oeste y así se constata en sus cuadros visuales, los ventanales, que se abren en todas las estancias hacia él.
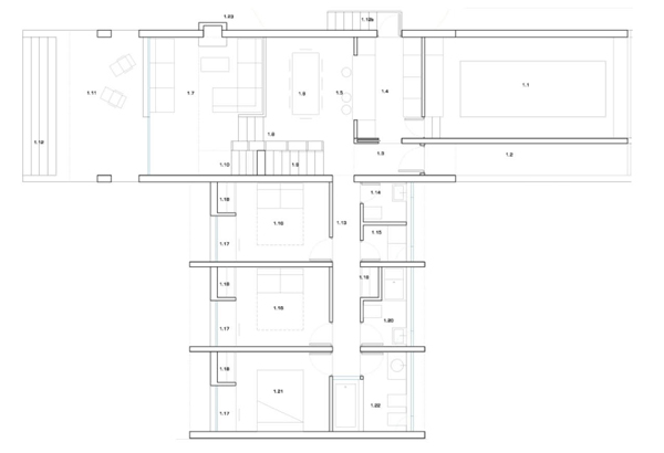
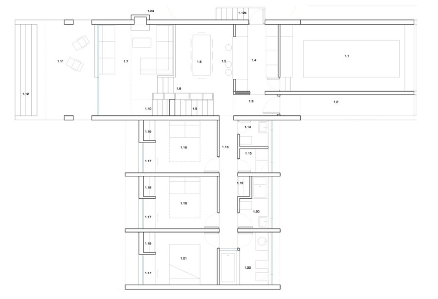
Se trata de una vivienda unifamiliar aislada destinada al descanso y
reunión familiar. Debe permitir con cierta comodidad ocupaciones
elevadas. Al programa habitual de vivienda se le añade por
sugerencia del cliente una zona de lectura (con ventanal sobre el
encinar), un altillo/camarote y una amplia bodega.
Las limitaciones constructivas de la termoarcilla se sortean con un
espacio principal compuesto de varios espacios que se subdividen por
forjados y no por muros, conservando en todo momento la
comunicación visual.
La iluminación del gran volumen de el espacio principal
contribuye con su dispersión de esferas de distintos
tamaños a comprehender el espacio vacío y su riqueza, al
colonizar los distintos planos y aumentar la sensación de
amplitud.
