CENTRO DE MAYORES "El Val"

CLIENTE:    Ayuntamiento de Alcalá de Henares

OBRA CONSTRUIDA



FICHAS

el val_ficha 1

 el val_ficha 2

val_ficha03

DESCRIPCIÓN DEL PROYECTO

Conjugando zonas para el ocio y el esparcimiento, con espacios para la realización de diferentes actividades culturales y recreativas, y pensado desde el usuario, el nuevo Centro de Mayores cubre las necesidades de un segmento muy importante de nuestra población, que demanda espacios modernos, adaptados a tiempos nuevos. 

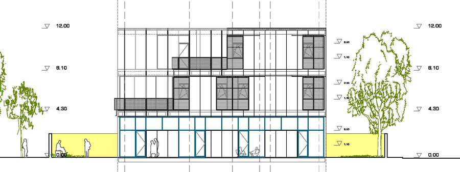
Espacialmente el edificio es un volumen horadado por espacios vacíos que articulan la relación entre el exterior y el interior. Los límites exteriores del edificio colmatan el volumen máximo permitido por el retranqueo. Diversos patios y terrazas ajardinadas relacionan con el exterior los espacios de distribución del programa. La envolvente principal es continua y sus huecos están protegidos por contraventanas de color mostrando dos aspectos radicalmente distintos según su posición.

El diseño propuesto apuesta por la relación con la ciudad, con el espacio urbano, proyectándose hacia fuera, abriendo la calle a sus usuarios. Así, los usos de la planta baja se prolongan hacia los lugares ajardinados de esparcimiento al aire libre, mientras los de las plantas superiores los hacen con terrazas, generando un espacio continuo, vivo y alegre. Muros móviles delimitan la parcela y abren a gusto sus fachadas a la calle. Sobre todos los espacios elevándose sobre el edificio frente a ella, la sala de baile en la azotea, con vistas al paisaje y con amplios ventanales de orientación noreste. En una sociedad moderna donde los mayores son cada vez más activos, la sala de baile es espejo y fachada del edificio y simboliza actividad, alegría y vida.

Imagen viva y cambiante.

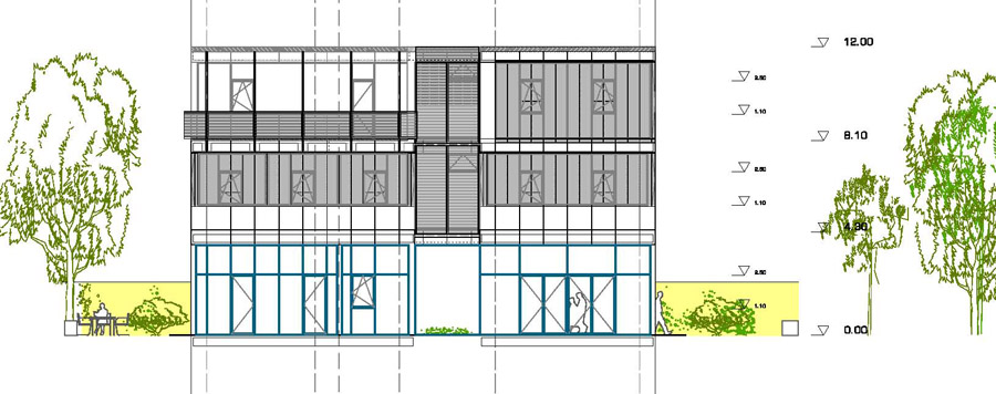
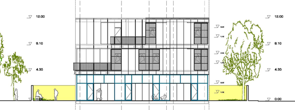
Las contraventanas de color se conciben como grandes elementos móviles verticales que dan variedad y colorido a la fachada, protegiendo los huecos de excesivas cargas térmicas en verano. Se sitúan en los huecos que se abren a la calle Santander y la Avenida de Castilla, confiriendo a éstas, las fachadas principales, el aspecto más público y más llamativo del edificio. 

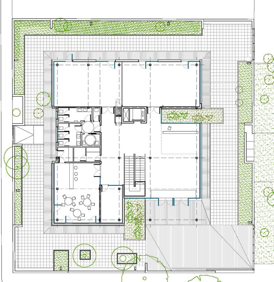
Continuidad del jardín dentro del edificio.

Los espacios de la planta baja se continúan visualmente en el jardín mediante grandes huecos de vidrio.
La incisión en el edificio de profundos patios y la creación de generosas terrazas ajardinadas en el edificio se corresponden con la intención de llevar la presencia de vegetación y el contacto con el exterior a todo el programa. Los patios introducen luz natural en el vestíbulo principal y los espacios superiores de distribución, ofreciendo amplias visuales entre distintos puntos del interior.

Las zonas lúdicas de planta baja se prolongan hacia el jardín

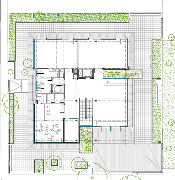
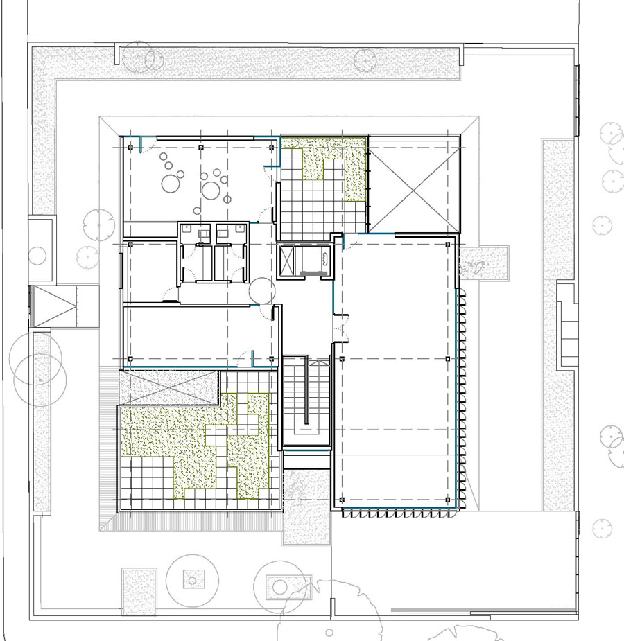
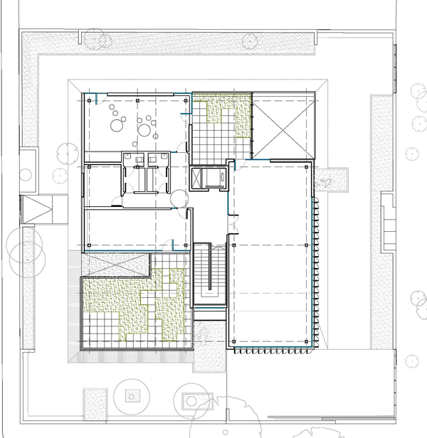
En la planta de acceso se localizan los usos relacionados con el esparcimiento y que pueden tener un mayor contacto con los espacios ajardinados de la parcela. Se produce así, un interesante juego de filtros y privacidades. El espacio exterior se entiende, además de como jardín, como un espacio con contenido y uso. Así el bar se continúa como terraza hacia el espacio exterior ajardinado. Con distintos grados de intimidad salen al exterior, igualmente, los salones de juegos con usos exteriores, relacionados con las actividades, así como el vestíbulo principal. La inserción de un patio en la zona del vestíbulo potencia la relación interior y exterior y las visiones cruzadas entre distintos espacios del programa

Lectura, concentración y trabajo en planta primera

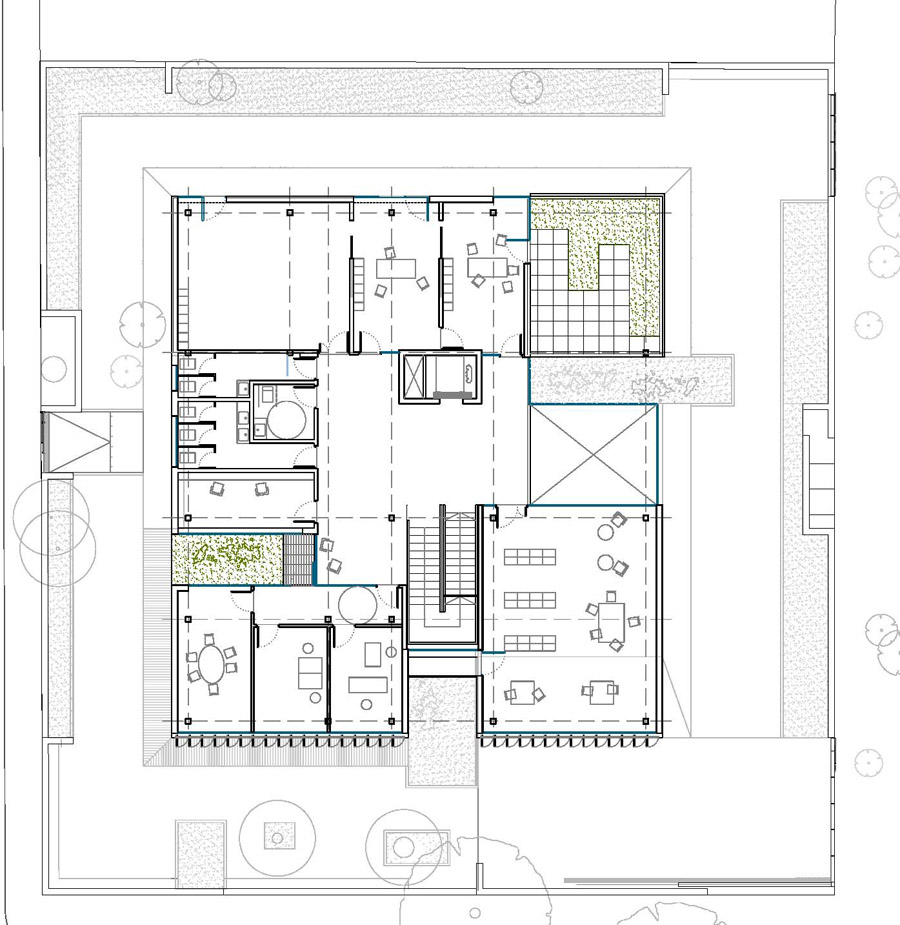
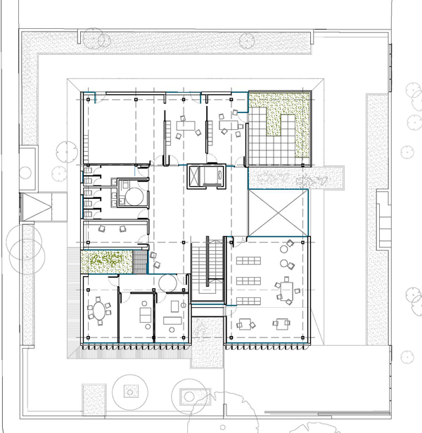
En la planta primera, se localizan aquellos usos con un carácter más privado, más íntimo, de mayor concentración. La zona administrativa, las distintas aulas y talleres, la biblioteca y la peluquería. Son espacios a los que se accede desde el distribuidor central en que se ubica el núcleo de comunicaciones. Se abren a las cuatro fachadas del edificio. Cada fachada responde a las orientaciones de diferente forma. 

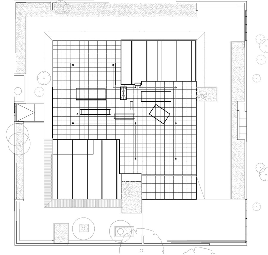
Una sala de baile con vistas

En la segunda y última planta se localiza la sala de baile. Espacio emblemático, de disfrute, que se manifiesta hacia la fachada principal mediante un amplio ventanal y desde el que se tienen amplias vistas al paisaje.

SITUACION

el val_situacion


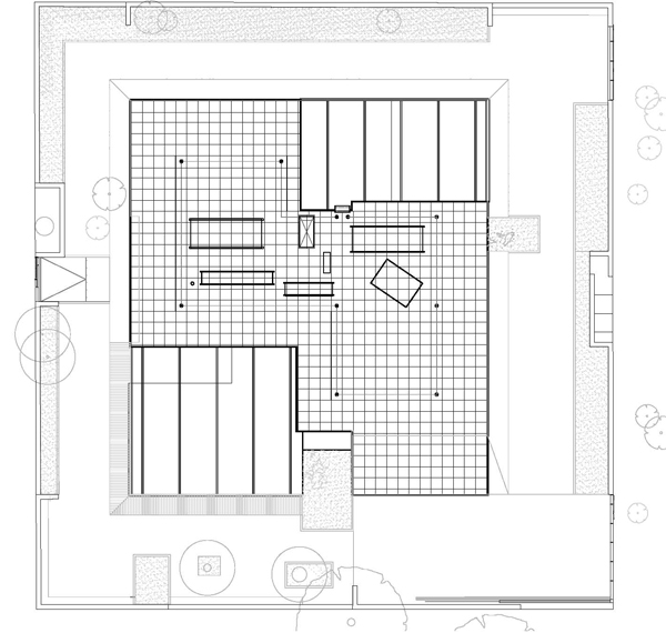
PLANTAS


p00

PLANTA 0

p01
PLANTA 1

p02
PLANTA 2

p03
PLANTA CUBIERTAS

ALZADOS

ALZADO 01

ALZADO NOROESTE

alz02

ALZADO SURESTE

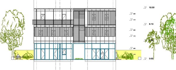
SECCIONES

seccion 01

SECCION POR TERRAZAS

sec02

SECCION POR VESTIBULO DE ENTRADA

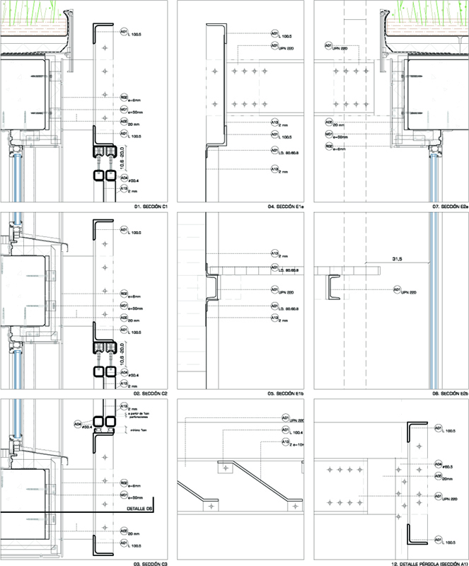
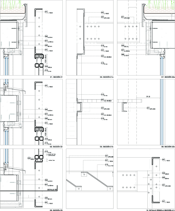
DETALLES

detalles01

detalles02

IMAGENES

img01


img02


img03img04


img05img06img06