Rehabilitación del antiguo Ayuntamiento para Centro de Acceso Público a Internet

CLIENTE:    Dirección General de Arquitectura y Vivienda de la Consejería de Medio Ambiente y Ordenación del Territorio de la Comunidad de Madrid

PROYECTO DE EJECUCIÓN



FICHAS

CAM_FICHA01

CAM_FICHA02

CAM_FICHA03

DESCRIPCIÓN DEL PROYECTO

El proyecto se plantea como un elemento urbano que pueda servir de enlace entre pasado, presente y futuro, tanto por su cambio de uso como por la transformación de su arquitectura.

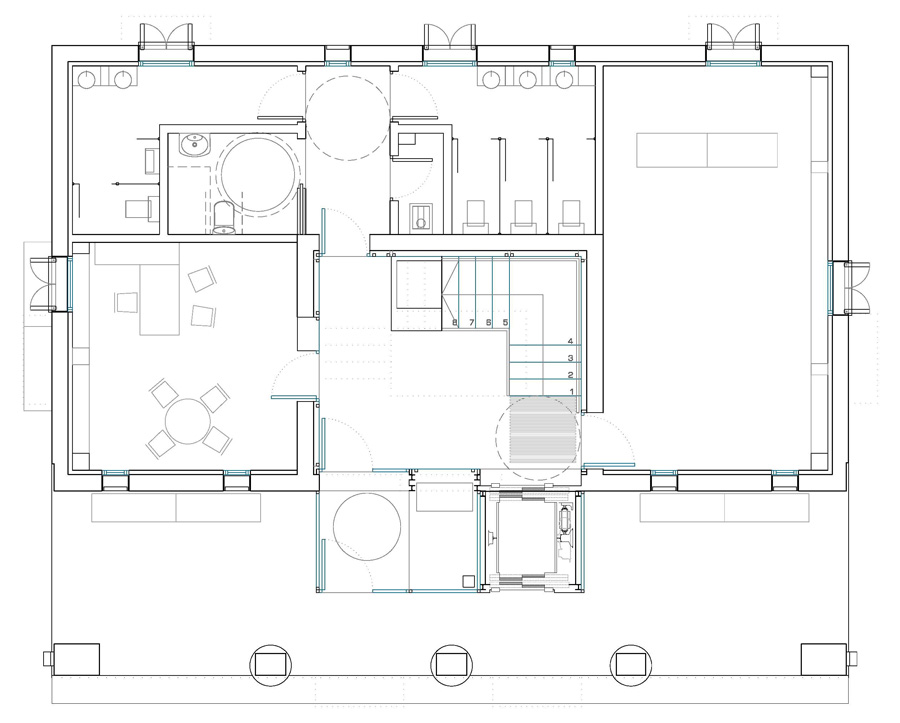
Se demanda un edificio multiusos que debe contar con una oficina para administración, sala con posibilidad de realizar reuniones de grupos de asociaciones, amplias salas donde desarrollar diversas actividades y otras salas de menor tamaño. Se solicita un desarrollo de las comunicaciones más claro siendo necesaria la incorporación de un ascensor para cumplir las exigencias de accesibilidad.

Para ello transforma su esquema funcional sobreparticionado para crear ámbitos de mayor dimensión, más abiertos y flexibles, con una mayor independencia, mejor acondicionados y con una nueva riqueza espacial.

La propuesta formal busca tomar su arquitectura tradicionalista y transformarla, con una intervención acotada, respetuosa pero a la vez decidida, en un elemento contemporáneo de diálogo pasado/presente/futuro. Se busca un discurso simultaneo a dos voces:

1/ la imagen exterior de caserón rural, que ha sido respetada en su esencia (aspecto exterior de sus muros, cubierta de teja, dimensión de huecos, pórtico), habla en su arquitectura de imitación de las construcciones que conformaron el pueblo de Camarma (desaparecidas prácticamente en el centro del pueblo como se ha dicho por nuevas edificaciones de nula calidad)

2/ la serie de intervenciones destacadas realizadas tanto en el exterior como en el interior hablarán del momento actual del edificio y del propio Municipio.

La incorporación de elementos contemporáneos se materializa en tres gestos claros: los huecos de fachada, el nuevo núcleo de comunicaciones y el lucernario.

Los huecos de fachada se convierten en sugerencias de la transformación del interior y en anuncio del nuevo uso. La nueva propuesta para estos huecos incluye la sustitución de las actuales carpinterías de PVC de escasa calidad por otras de aluminio lacado de gran calidad con gran aislamiento, menos fragmentadas y, por tanto, con una concepción unitaria desde el exterior, así  como contraventanas de lamas para el control solar.

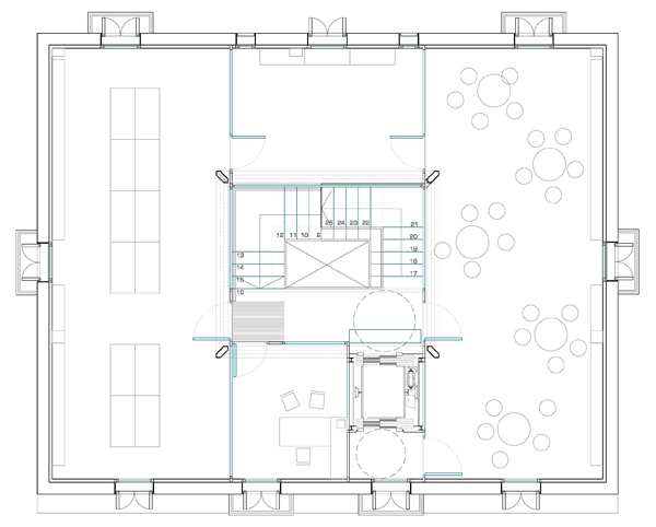
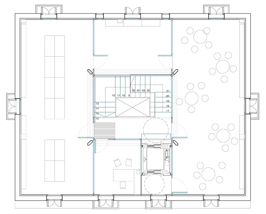
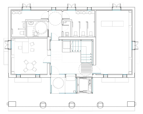
El nuevo núcleo de comunicaciones se plantea además como elemento formal significante que nos habla del paso del tiempo. Se concreta en un prisma vítreo que atraviesa de abajo a arriba el edificio perforando forjados y cubierta hasta asomarse al pueblo como un enorme periscopio. En su interior las escaleras se pegan a las paredes del prisma (que se cubren de imágenes del pueblo en las distintas décadas) y subiendo por ellas iniciamos un viaje ascendente espacial, visual y temporal que concluye en las vistas del pueblo.

El lucernario es la nueva fuente de luz que debe reducir enormemente el consumo energético así como el elemento central de ventilación natural que se incorpora como complemento a la climatización mecánica. Se trata de un elemento que se destaca sobre la cubierta de teja con gran parte de su superficie transparente y con aperturas para la ventilación mediante efecto Venturi.


SITUACIÓN

situ

PLANTAS

p00


p01

ALZADOS

alz01

alz02

SECCIONES

seccion

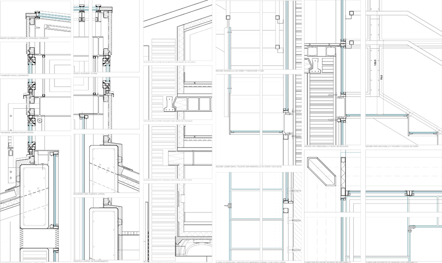
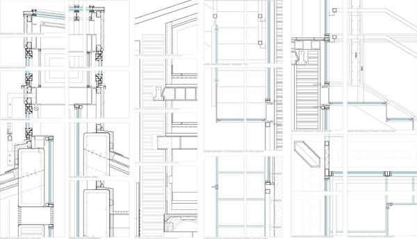
DETALLES

detalles

ESQUEMAS

ventilacion

IMÁGENES

dibujo01


dibujo02


dibujo03

soleamiento

imagen