VIVIENDA EN LA CALLE HUERTAS

CLIENTE:    Javier Nuche

OBRA CONSTRUIDA



FICHAS

HRT_FICHA01

DESCRIPCIÓN DEL PROYECTO

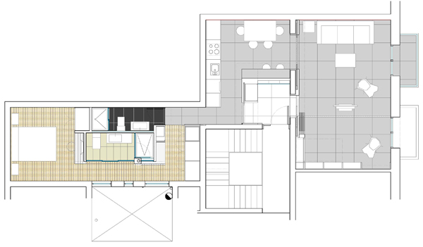
El proyecto parte de la definición espacial de dos ambientes: interior y exterior.

El ambiente interior se considera de partida el más adecuado para los espacios de mayor intimidad por el menor nivel de ruido de la calle y el exterior se corresponde con las dos primeras crujías de la vivienda, con iluminación de los dos balcones de fachada.

Cada una de estas áreas se distribuye mediante un volumen que llamamos caja 1 y caja 2.

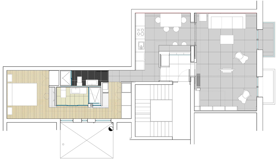
PLANTAS

planta

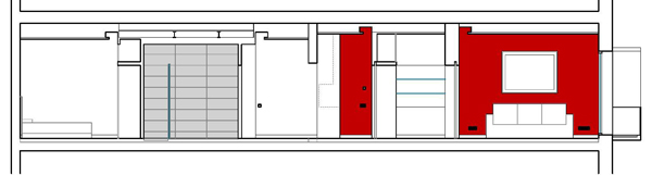
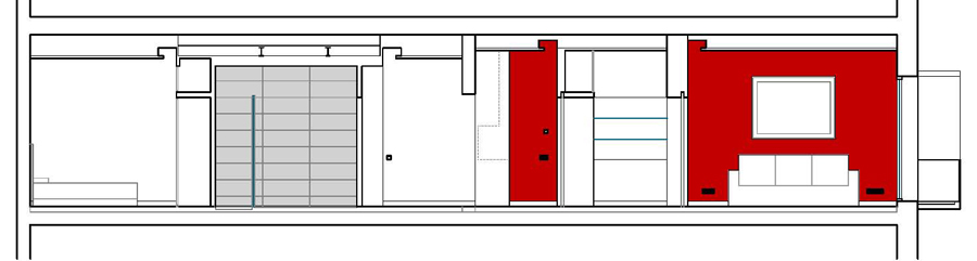
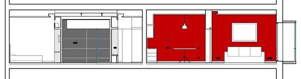
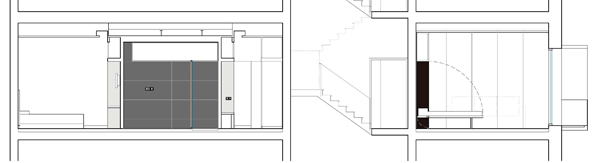
SECCIONES

seccion


sec02


sec03

ESQUEMAS

desarrollo caja 1


plantas caja 1

IMÁGENES

img01


dibujo caja 1


img02img03img04