CENTRO DE PRODUCCIÓN DE ARTES ESCÉNICAS

PROMOTOR:    Excmo. Ayto. de Molina de Segura



FICHAS

MLS_FICHA01

DESCRIPCIÓN DEL PROYECTO

El Centro de Producción y de Artes Escénicas de Molina de Segura se entiende como un espacio de máxima libertad para los artistas, donde lo más importante es dar un soporte a su creatividad. El proyecto se posiciona por tanto en lo opuesto al edificio como objeto, proponiendo un sistema-ciudad con el arte como necesidad social de primer orden.

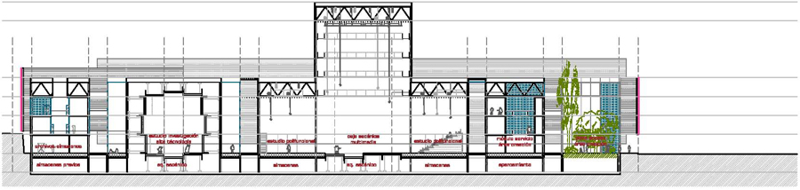
Un centro de Artes Escénicas más que un edificio, debe ser un sistema o proyecto de organización de espacios. La propuesta establece un conjunto de espacios a partir de dos elementos básicos: el módulo equipado y la calle de actividad, que en las múltiples configuraciones proyectadas configuran unos espacios de la máxima flexibilidad y versatilidad.

La actividad de centro y las intervenciones diarias de los artistas, ciudadanos y organismos implicados, configurarán un Centro siempre contemporáneo y en constante evolución, donde se estimulan u posibilitan las interacciones, espaciales y programáticas, entre las distintas áreas de las artes escénicas.

La propuesta no se identifica en absoluto con la llamada 'arquitectura contenedor'. El matiz de diferencia lo aporta el entendimiento del conjunto como un espacio urbano, donde los usos de los módulos-edificio se interrelacionan con las calles-corredores de actividad. En este sentido el Centro es una ciudad, Ciudad de las Artes Escénicas, que si bien se desarrolla al margen del tejido industrial que la rodea, se abre a la calle a través de plazas abiertas y de velos tamizados que delimitan sutilmente los espacios.

El caracter abierto y las distintas sensibilidades (artistica, ambiental, de habitabilidad, económica, etc.), que se muestran en las bases  del concurso, invitan a la realización de un programa con un desarrollo por fases que en la propuesta abarca al menos tres vertientes: la de proyecto, la de la vida diaria del centro y la de las posibles ampliaciones.

Se establecen tres fases principales de evolución que cumplirían los objetivos en cuanto a la ambición regional-nacional-internacional del Centro y que es posible efectuar a su vez de manera secuencial, adaptando los distinto espacios al enfoque que el Centro necesite en cada momento.

PROGRAMA

El programa se organiza en áreas con delimitación flexible. desarrollándose alrededor de unos espacios libres, que permanecerán como referente en todas las fases de evolución. y de un módulo base de servicios (oficinas, aseos, vestuarios, espacios disponibles). Cada área tendrá unos módulos de uso específico y otros para compartir con el resto de las áreas.

Las calles entre módulos, abiertas, cubiertas o cerradas, se consideran como espacios de actividad susceptibles de agregarse a los espacios interiores.

Las plazas esteriores, algunas dotadas de infraestructura escénica, se conciben como espacios para espectáculos públicos y/o privados.

PANELES

panel01panel02panel03panel04

SITUACIÓN

situ

PLANTAS

planta

ALZADOS

alzado

SECCIONES

sec01

sec02

ESQUEMAS

esq01

esq02

esq03

IMÁGENES

imagen