SEIS VIVIENDAS

CLIENTE:    Escudos y Blasones

OBRA CONSTRUIDA



FICHAS

VLM_FICHA01

DESCRIPCIÓN DEL PROYECTO

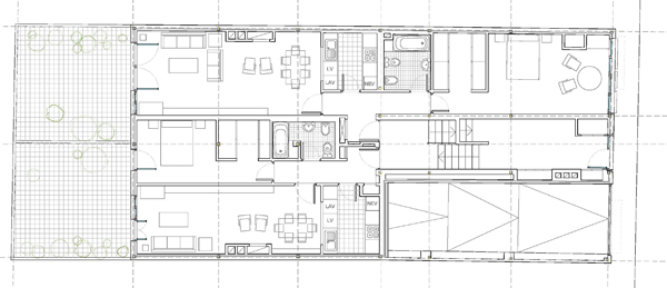
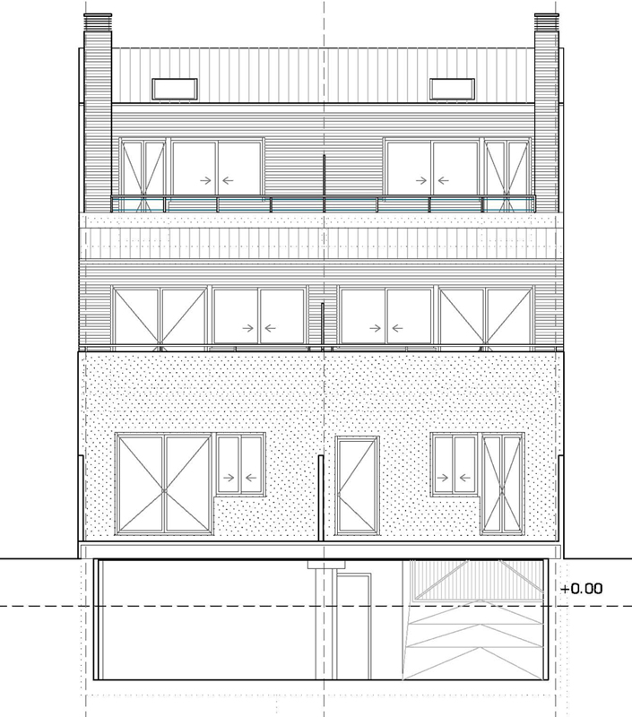
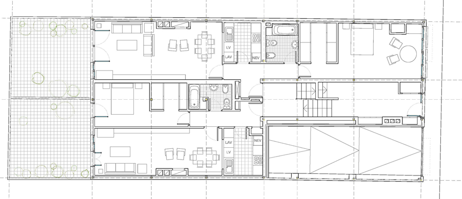
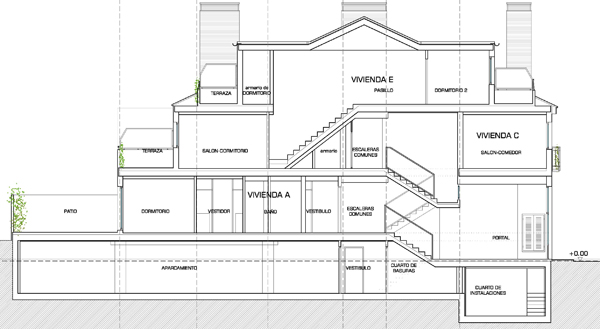
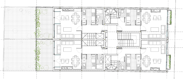
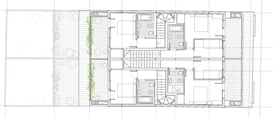
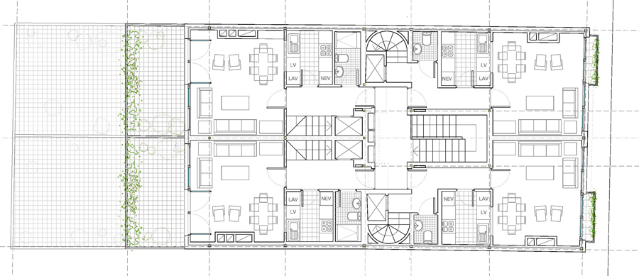
Se trata de un edificio proyectado en dos plantas sobre rasante (baja y primera) y bajo cubierta dedicadas a viviendas y una planta bajo rasante dedicada a aparcamiento, trasteros, cuarto de basuras y locales comunes de instalaciones. La cubierta es inclinada con elementos abuhardillados. La fachada frontal, con balcones en la primera planta, se alinea a la calle en toda su altura, mientras que la trasera se va escalonando formando el patio y unas terrazas.
La planta baja se adapta a la topografía de la parcela, estando situada la entrada al inmueble a nivel de la calle y la planta baja de viviendas por encima de ésta.

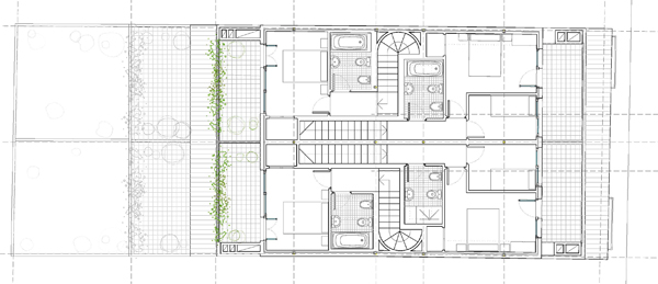
En la planta baja hay dos viviendas distribuidas longitudinalmente. En la planta primera se distribuyen las otras cuatro viviendas dividiendo la planta en cuatro zonas según los ejes del edificio, teniendo cada una de ellas una zona de bajo-cubierta habitable en el extremo opuesto del edificio. Esta disposición permite que todas las viviendas tengan huecos a ambos lados de la parcela, al Este a la Calle Barrio Nuevo y al Oeste al patio de parcela, consiguiéndose ventilación cruzada, así como una mayor igualdad de condiciones entre las viviendas que con las soluciones habituales.
Las viviendas en planta baja incorporan el espacio de patio para su uso privado, mientras las superiores tienen terrazas y/o balcones como elementos de relación con el exterior.

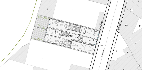
SITUACIÓN

situ

PLANTAS

p00

p01

p02

SECCIONES

seccion transversal

seccion transversal

seccion por patio

ESQUEMAS

esq01

esq02